關於中信
ESG公益
加盟中信
訂閱電子報
登入
買屋
區域找屋
AI智慧搜屋
社區找屋
地圖找屋
捷運找屋
CP值找屋
主題找屋
海外置產
購屋試算
買賣知識庫
交易服務
售屋
售屋委託
交易服務
服務據點
買賣知識庫
實價登錄
區域實價登錄
社區成交行情
捷運成交行情
海外不動產
精選物件
投資說明會
買賣資訊介紹
常見問題
海外中信
租屋
區域找屋
租屋地圖
買賣知識庫
加盟中信
加盟中信
服務據點
服務據點
徵才公告
徵才公告
工作職缺
知識
新聞
知識特輯
生活情報
不動產知識教室
法律稅務
稅費試算
買賣節稅技巧
會員專區
桃園市府特區好宅
(2062921)
(1,468萬)
03-3685599
我有興趣
預約看屋
聯絡大名
*
*
表示必填欄位
聯絡方式
*
聯絡時間
*
皆可
上午
中午
下午
晚上
※當您留下個人資料時,表示你已了解閱讀並同意中信房仲網之
隱私權政策
。
※本出價非購買(要約或承諾)之意思表示,僅供賣方評估市場價格,正式表達購買意願仍應洽加盟店簽立書面契據。
預約看屋
我要出價
取消
萬
送出
基本資訊
詳細資訊
地圖/街景
區域開價落點
更多詳細圖片
實價登錄
更多物件
買屋條件找屋
/
區域找屋
/
桃園市
/
桃園區
/
桃園市桃園區廈門街
/
桃園市府特區好宅
桃園市府特區好宅
(2062921)
26%
桃園市桃園區廈門街
1987萬
1468
萬
★降價通知我
物件編號:
2062921
連絡電話:
03-3685599
以上照片內容如非室內,即為環境介紹,非銷售物件本身
2062921
桃園市府特區好宅
桃園市桃園區廈門街
26%
1468
萬
(含車位價格:0萬)
★降價通知
取消
收藏
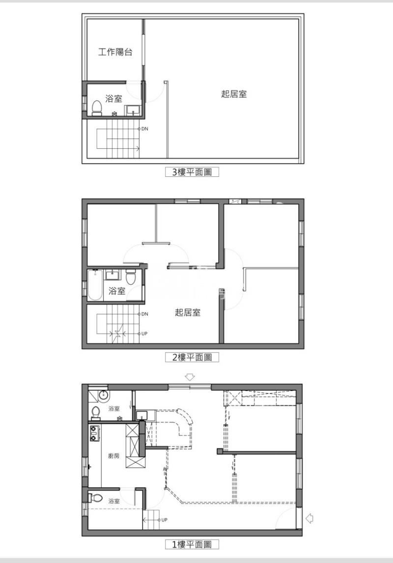
總坪數
15.43
坪
主建物
15.43
坪
空間格局
6
房
3
廳
4
衛
樓層,屋齡
1
樓/共
1
樓
57
年
3
個月
格局
6
房
3
廳
4
衛
樓層
1
樓/共
1
樓
屋齡
57
年
3
個月
聯絡時間
皆可
上午
中午
下午
晚上
*
當您留下個人資料時,表示你已了解閱讀並同意中信房仲網之
隱私權政策
。
預約看屋
我要出價
取消
萬
送出
*
※本出價非購買(要約或承諾)之意思表示,僅供賣方評估市場價格,正式表達購買意願仍應洽加盟店簽立書面契據。
洽詢此物件資訊請撥
03-3685599
八德興豐加盟店
店長推薦精選
好順不動產仲介有限公司
桃園市八德區興豐路688號
想了解更多物件資訊嗎? 立刻聯絡
八德興豐加盟店
03-3685599
案件敘述
離桃園縣府約300公尺 生活機能佳 平房增建至3樓
縣立西門國小
縣立文山國小
公車站-文化局
公車站-廈門正光路口
公車站-府前郵局
公車站-土地改革館
公車站-桃園市政府
總價
1,987萬
1,468
萬
建物登記
15.43
坪
格局
6
房
3
廳
4
衛
屋齡
57
年
3
個月
所在樓層
1
樓/共
1
樓
價格
總價:1,468萬
降價通知我
附近成交行情
貸款試算:
馬上算 >
每坪單價:95.14萬
空間
建物登記:15.43坪
詳細謄本資訊
土地坪數:25.71 坪
主建物:15.43坪
格局:
6
房
3
廳
4
衛
所在樓層:1樓/共1樓
車位描述:無車位
屋況
屋齡:
57
年
3
個月
主要建材:加強磚造
是否帶租約:否
使用現況:請參閱不動產說明書
環境
地址:桃園市桃園區廈門街
學校:
西門國小、中興國中
生活地圖
生活地圖
顯示街景
顯示街景
提醒:本地圖定位為參考 台灣圖霸Map8 定位,請符合 台灣圖霸Map8 地址規範,如有誤差為 台灣圖霸Map8 定位所致
區域開價落點
每坪單價:請洽
03-3685599
鄰近區域銷售中房屋參考資料較少,建議同步參考
成交行情
資料來源:距離本物件800公尺範圍內之中信房屋待售行情資訊。
更多圖片
想了解更多物件資訊嗎? 立刻聯絡
八德興豐加盟店
03-3685599
區域實價登錄
區域實價登錄
共有{{price_gv.DataSouce.total}}筆物件
成交日期
地址
成交價
單價
類型
屋齡
總坪數
土地坪數
備註
{{fn.RenderDate(item.con_date)}}
{{item.address}}
{{item.total_price}}萬
{{item.unit_price.toFixed(0)}}萬/坪
{{item.htc_name}}
{{item.house_age}}年
{{item.building_area.toFixed(2)}}坪
{{item.land_area.toFixed(2)}}坪
註
{{item.remark}}
{{item.remark}}
X
{{itemPage.txt}}
共有{{community_gv.DataSouce.total}}筆物件
成交日期
地址
成交價
單價
類型
屋齡
總坪數
土地坪數
備註
{{fn.RenderDate(item.con_date)}}
{{item.address}}
{{item.total_price}}萬
{{item.unit_price.toFixed(0)}}萬/坪
{{item.htc_name}}
{{item.house_age}}年
{{item.building_area.toFixed(2)}}坪
{{item.land_area.toFixed(2)}}坪
註
{{item.remark}}
{{item.remark}}
X
{{itemPage.txt}}
看過此物件的人也看了以下物件
{{item.case_name}}
{{item.address}}
{{item.house_area}}坪
{{item.r_type}}
售價
{{item.sell_price}}
萬
看更多
降價通知我
請輸入您的聯絡資訊,我們將派人與您聯繫。
*
當您留下個人資料時,表示你已了解閱讀並同意中信房仲網之
隱私權政策
。
送出
本物件異動價格下降時,將以簡訊通知您。
確定
立即聯繫專人
請輸入您的聯絡資訊,我們將立即為您服務。
*
當您留下個人資料時,表示你已了解閱讀並同意中信房仲網之
隱私權政策
。
送出
我要出價
預約看屋
聯絡電話
分享
降價通知
預約看屋
聯絡電話
分享
預約看屋
聯絡電話
轉寄親友
對方聯絡資訊
*
*
表示必填欄位
※您可轉寄給多位親友,請在不同E-mail間用分號 ; 區隔
信件主旨/分享內容
*
分享推薦-桃園市府特區好宅(桃園市桃園區廈門街)
想分享這個資訊給你
寄件人資訊
*
※當您留下個人資料時,表示你已了解閱讀並同意中信房仲網之
隱私權政策
。
更新驗證碼
{{sendFriendLoading?"資料傳輸中":"送出"}}
{{mailinfo.nick}}
,謝謝您的分享!
也歡迎利用社群功能
分享更多資訊!
確定
我有興趣
您的資料已成功送出,本物件負責加盟店將盡速與您聯繫。
您可能也會喜歡以下物件:
1049萬
A-03比佛利會館
桃園市桃園區樹仁三街
1衛
34.48坪
1799萬
桃園超值大商辦
桃園市桃園區春日路
6房2廳1衛
111.36坪
1049萬
A-03比佛利會館
桃園市桃園區樹仁三街
1衛
34.48坪
1480萬
【安家】專任-平鎮鼎藏樸麗挑高店面1樓
桃園市平鎮區南安路
1衛
38.97坪
預約看屋
取消
2072170,2077879,2054188,2086859
我有興趣
以下是您追加的預約資訊:
A-03比佛利會館
已處理成功,本物件負責加盟店將盡速與您聯繫。
桃園超值大商辦
已處理成功,本物件負責加盟店將盡速與您聯繫。
A-03比佛利會館
已處理成功,本物件負責加盟店將盡速與您聯繫。
【安家】專任-平鎮鼎藏樸麗挑高店面1樓
已處理成功,本物件負責加盟店將盡速與您聯繫。
確定
謄本資訊
總坪數:
15.43 坪
●主建物小計:15.43 坪
土地坪數:
25.71 坪
謄本資料為米平方為單位,官網顯示為坪,所以計算上會有些微四捨五入的誤差
貸款試算
房屋總價
1,468
萬
貸款金額
{{loan.price_f}}
元
貸款成數
%
貸款年限
年
貸款年利率
%
※ 依個人條件不同,貸款年利率將有所差異。
每月償還本息
{{loan.monthpay}}
元/每月
註解
所謂公設比,是指房屋權狀坪數中,屬於共同使用的空間比例。公設比愈高, 代表公共設施、共同使用的空間愈大,相對實際屬於住戶私有的坪數愈小。公 設比計算方式說明:公設比=共用部分面積/權狀總面積(主建物+附屬建物+共 用部分面積)。如遇梯間拼入主建物面積登記,或有其他約定專用或約定共用之 特殊情形者,仍依上開方式計算,並依地政機關登記簿謄本為準。
預約看屋
姓名
手機號碼
可聯絡時間
皆可
上午
中午
下午
晚上
預約看屋
我要出價
姓名
手機號碼
出價金額
萬
可聯絡時間
皆可
上午
中午
下午
晚上
送出
目前尚無收藏物件
確定
192.168.1.43