關於中信
ESG公益
加盟中信
訂閱電子報
登入
買屋
區域找屋
AI智慧搜屋
社區找屋
地圖找屋
捷運找屋
CP值找屋
主題找屋
海外置產
購屋試算
買賣知識庫
交易服務
售屋
售屋委託
交易服務
服務據點
買賣知識庫
實價登錄
區域實價登錄
社區成交行情
捷運成交行情
海外不動產
精選物件
投資說明會
買賣資訊介紹
常見問題
海外中信
租屋
區域找屋
租屋地圖
買賣知識庫
加盟中信
加盟中信
服務據點
服務據點
徵才公告
徵才公告
工作職缺
知識
新聞
知識特輯
生活情報
不動產知識教室
法律稅務
稅費試算
買賣節稅技巧
會員專區
B028 景觀花園樓中樓露台三車
(2077502)
(2,788萬)
02-26828555
我有興趣
預約看屋
聯絡大名
*
*
表示必填欄位
聯絡方式
*
聯絡時間
*
皆可
上午
中午
下午
晚上
※當您留下個人資料時,表示你已了解閱讀並同意中信房仲網之
隱私權政策
。
※本出價非購買(要約或承諾)之意思表示,僅供賣方評估市場價格,正式表達購買意願仍應洽加盟店簽立書面契據。
預約看屋
我要出價
取消
萬
送出
基本資訊
詳細資訊
地圖/街景
更多詳細圖片
實價登錄
更多物件
買屋條件找屋
/
區域找屋
/
新北市
/
鶯歌區
/
新北市鶯歌區國中街
/
雷諾瓦
/
B028 景觀花園樓中樓露台三車
B028 景觀花園樓中樓露台三車
(2077502)
新北市鶯歌區國中街
雷諾瓦
2788
萬
(含車位價格:510萬)
★降價通知我
物件編號:
2077502
連絡電話:
02-26828555
以上照片內容如非室內,即為環境介紹,非銷售物件本身
2077502
B028 景觀花園樓中樓露台三車
新北市鶯歌區國中街
2788
萬
(含車位價格:510萬)
★降價通知
取消
收藏
總坪數
91.48
坪
(含車位:27.4791坪)
主+陽
41.13
坪
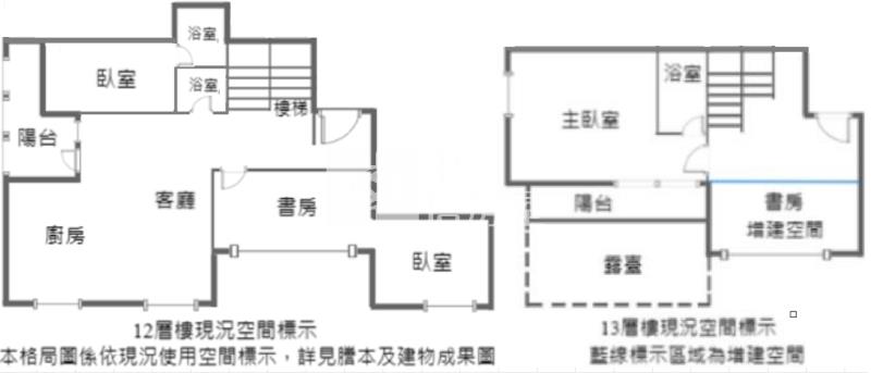
空間格局
4
房
2
廳
3
衛
樓層,屋齡
12
~
13
樓/共
13
樓
10
年
11
個月
格局
4
房
2
廳
3
衛
樓層
12
~
13
樓/共
13
樓
屋齡
10
年
11
個月
聯絡時間
皆可
上午
中午
下午
晚上
*
當您留下個人資料時,表示你已了解閱讀並同意中信房仲網之
隱私權政策
。
預約看屋
我要出價
取消
萬
送出
*
※本出價非購買(要約或承諾)之意思表示,僅供賣方評估市場價格,正式表達購買意願仍應洽加盟店簽立書面契據。
洽詢此物件資訊請撥
02-26828555
樹林家樂福加盟店
店長推薦精選
輝達不動產有限公司
新北市樹林區保安街1段224號
想了解更多物件資訊嗎? 立刻聯絡
樹林家樂福加盟店
02-26828555
輝達不動產有限公司
鶯歌區
雷諾瓦社區
近一年成交
1
筆 待售
3
筆
案件敘述
1.高規格公設,羽球場,視聽室,交誼廳,桌球場,健身房
2.雙語幼兒園,二橋國小,尖山國中,鶯歌高職,台北大學,完善學區
3.免費市區公車,鶯歌火車站,三鶯線捷運站陶博館站,三鶯交流道
4.陶瓷博物館,鶯歌美術館,老街,溪畔步道,5000坪大公園
5.高樓層大露臺(約定使用),可做空中花園,下午茶時光,生活好愜意
雷諾瓦
縣立二橋國小
縣立尖山國中
公車站-國中街
公車站-二橋國小
公車站-二橋
公車站-麗新社區
公車站-安家凱薩
總價
(含車位價格:510萬)
2,788
萬
建物登記
(含車位:27.47坪)
91.48
坪
格局
4
房
2
廳
3
衛
屋齡
10
年
11
個月
所在樓層
12
~
13
樓/共
13
樓
價格
總價:2,788萬
(含車位價格:510萬)
降價通知我
附近成交行情
貸款試算:
馬上算 >
每坪單價:請洽 02-26828555
空間
建物登記:91.48坪
(含車位:27.47坪)
詳細謄本資訊
土地坪數:11.40 坪
主+陽:41.13坪
格局:
4
房
2
廳
3
衛
公設比:35.7%
所在樓層:12~13樓/共13樓
車位描述:平面式 / 坡道式
屋況
採光:2面
屋齡:
10
年
11
個月
房屋管理費:每戶7,080(元)/月
用途:集合住宅
車位管理費:機車900元/月 72號
主要建材:鋼筋混凝土
是否帶租約:否
使用現況:請參閱不動產說明書
環境
地址:新北市鶯歌區國中街
社區:雷諾瓦
學校:
二橋國小、尖山國中
生活地圖
生活地圖
顯示街景
顯示街景
提醒:本地圖定位為參考 台灣圖霸Map8 定位,請符合 台灣圖霸Map8 地址規範,如有誤差為 台灣圖霸Map8 定位所致
更多圖片
想了解更多物件資訊嗎? 立刻聯絡
樹林家樂福加盟店
02-26828555
輝達不動產有限公司
區域實價登錄
區域實價登錄
社區實價登錄
社區實價登錄
共有{{price_gv.DataSouce.total}}筆物件
成交日期
地址
成交價
單價
類型
屋齡
總坪數
土地坪數
備註
{{fn.RenderDate(item.con_date)}}
{{item.address}}
{{item.total_price}}萬
{{item.unit_price.toFixed(0)}}萬/坪
{{item.htc_name}}
{{item.house_age}}年
{{item.building_area.toFixed(2)}}坪
{{item.land_area.toFixed(2)}}坪
註
{{item.remark}}
{{item.remark}}
X
{{itemPage.txt}}
共有{{community_gv.DataSouce.total}}筆物件
成交日期
地址
成交價
單價
類型
屋齡
總坪數
土地坪數
備註
{{fn.RenderDate(item.con_date)}}
{{item.address}}
{{item.total_price}}萬
{{item.unit_price.toFixed(0)}}萬/坪
{{item.htc_name}}
{{item.house_age}}年
{{item.building_area.toFixed(2)}}坪
{{item.land_area.toFixed(2)}}坪
註
{{item.remark}}
{{item.remark}}
X
{{itemPage.txt}}
看過此物件的人也看了以下物件
{{item.case_name}}
{{item.address}}
{{item.house_area}}坪
{{item.r_type}}
售價
{{item.sell_price}}
萬
看更多
降價通知我
請輸入您的聯絡資訊,我們將派人與您聯繫。
*
當您留下個人資料時,表示你已了解閱讀並同意中信房仲網之
隱私權政策
。
送出
本物件異動價格下降時,將以簡訊通知您。
確定
立即聯繫專人
請輸入您的聯絡資訊,我們將立即為您服務。
*
當您留下個人資料時,表示你已了解閱讀並同意中信房仲網之
隱私權政策
。
送出
我要出價
預約看屋
聯絡電話
分享
降價通知
預約看屋
聯絡電話
分享
預約看屋
聯絡電話
轉寄親友
對方聯絡資訊
*
*
表示必填欄位
※您可轉寄給多位親友,請在不同E-mail間用分號 ; 區隔
信件主旨/分享內容
*
分享推薦-B028 景觀花園樓中樓露台三車(新北市鶯歌區國中街)
想分享這個資訊給你
寄件人資訊
*
※當您留下個人資料時,表示你已了解閱讀並同意中信房仲網之
隱私權政策
。
更新驗證碼
{{sendFriendLoading?"資料傳輸中":"送出"}}
{{mailinfo.nick}}
,謝謝您的分享!
也歡迎利用社群功能
分享更多資訊!
確定
我有興趣
您的資料已成功送出,本物件負責加盟店將盡速與您聯繫。
您可能也會喜歡以下物件:
2098萬
b-17菁英薈2
新北市鶯歌區鳳五路
3房2廳2衛
42.69坪
2296萬
C-21森聯之王-森悅
新北市鶯歌區鶯歌路
3房2廳2衛1室
64.46坪
2280萬
B-61森聯LIFE-森朗
新北市鶯歌區鳳五路
3房2廳2衛
66.06坪
2698萬
市中心景觀雙車位
新北市鶯歌區中山路
3房2廳2衛
74.33坪
預約看屋
取消
2093669,2054568,2012781,1954825
我有興趣
以下是您追加的預約資訊:
b-17菁英薈2
已處理成功,本物件負責加盟店將盡速與您聯繫。
C-21森聯之王-森悅
已處理成功,本物件負責加盟店將盡速與您聯繫。
B-61森聯LIFE-森朗
已處理成功,本物件負責加盟店將盡速與您聯繫。
市中心景觀雙車位
已處理成功,本物件負責加盟店將盡速與您聯繫。
確定
謄本資訊
總坪數:
91.48 坪
●主建物小計:36.80 坪
●附屬建物小計:4.33 坪 (含陽台4.33坪)
●共同使用小計:50.35 坪 (含停車位27.47 坪)
土地坪數:
11.40 坪
謄本資料為米平方為單位,官網顯示為坪,所以計算上會有些微四捨五入的誤差
貸款試算
房屋總價
2,788
萬
貸款金額
{{loan.price_f}}
元
貸款成數
%
貸款年限
年
貸款年利率
%
※ 依個人條件不同,貸款年利率將有所差異。
每月償還本息
{{loan.monthpay}}
元/每月
註解
所謂公設比,是指房屋權狀坪數中,屬於共同使用的空間比例。公設比愈高, 代表公共設施、共同使用的空間愈大,相對實際屬於住戶私有的坪數愈小。公 設比計算方式說明:公設比=共用部分面積/權狀總面積(主建物+附屬建物+共 用部分面積)。如遇梯間拼入主建物面積登記,或有其他約定專用或約定共用之 特殊情形者,仍依上開方式計算,並依地政機關登記簿謄本為準。
預約看屋
姓名
手機號碼
可聯絡時間
皆可
上午
中午
下午
晚上
預約看屋
我要出價
姓名
手機號碼
出價金額
萬
可聯絡時間
皆可
上午
中午
下午
晚上
送出
目前尚無收藏物件
確定
192.168.1.42