關於中信
ESG公益
加盟中信
訂閱電子報
登入
買屋
區域找屋
AI智慧搜屋
社區找屋
地圖找屋
捷運找屋
CP值找屋
主題找屋
海外置產
購屋試算
買賣知識庫
交易服務
售屋
售屋委託
交易服務
服務據點
買賣知識庫
實價登錄
區域實價登錄
社區成交行情
捷運成交行情
海外不動產
精選物件
投資說明會
買賣資訊介紹
常見問題
海外中信
租屋
區域找屋
租屋地圖
買賣知識庫
加盟中信
加盟中信
服務據點
服務據點
徵才公告
徵才公告
工作職缺
知識
新聞
知識特輯
生活情報
不動產知識教室
法律稅務
稅費試算
買賣節稅技巧
會員專區
專-近永康國中透天店住
(2084255)
(1,680萬)
06-2030000
我有興趣
預約看屋
聯絡大名
*
*
表示必填欄位
聯絡方式
*
聯絡時間
*
皆可
上午
中午
下午
晚上
※當您留下個人資料時,表示你已了解閱讀並同意中信房仲網之
隱私權政策
。
※本出價非購買(要約或承諾)之意思表示,僅供賣方評估市場價格,正式表達購買意願仍應洽加盟店簽立書面契據。
預約看屋
我要出價
取消
萬
送出
基本資訊
詳細資訊
地圖/街景
區域開價落點
更多詳細圖片
實價登錄
更多物件
買屋條件找屋
/
區域找屋
/
臺南市
/
永康區
/
臺南市永康區永埔街
/
專-近永康國中透天店住
專-近永康國中透天店住
(2084255)
16%
臺南市永康區永埔街
2000萬
1680
萬
★降價通知我
物件編號:
2084255
連絡電話:
06-2030000
以上照片內容如非室內,即為環境介紹,非銷售物件本身
2084255
專-近永康國中透天店住
臺南市永康區永埔街
16%
1680
萬
(含車位價格:0萬)
★降價通知
取消
收藏
總坪數
54.79
坪
主+陽
50.12
坪
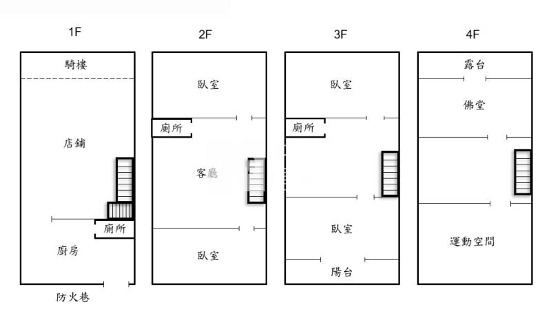
空間格局
6
房
3
廳
3
衛
樓層,屋齡
1
~
4
樓/共
4
樓
30
年
2
個月
格局
6
房
3
廳
3
衛
樓層
1
~
4
樓/共
4
樓
屋齡
30
年
2
個月
聯絡時間
皆可
上午
中午
下午
晚上
*
當您留下個人資料時,表示你已了解閱讀並同意中信房仲網之
隱私權政策
。
預約看屋
我要出價
取消
萬
送出
*
※本出價非購買(要約或承諾)之意思表示,僅供賣方評估市場價格,正式表達購買意願仍應洽加盟店簽立書面契據。
洽詢此物件資訊請撥
06-2030000
台南永康永大加盟店
店長推薦精選
鑫笠企業社
臺南市永康區永大路3段387號
想了解更多物件資訊嗎? 立刻聯絡
台南永康永大加盟店
06-2030000
鑫笠企業社
案件敘述
位於永康成熟生活圈,鄰近永康交流道與主要幹道,交通便捷、生活機能完善;
步行可達永康國小、國中。
店住透天格局方正,店住合一,空間規劃彈性高,兼顧自用、營業與保值性。
縣立永康國小
縣立永康國中
公車站-永康國中
公車站-永大路埔聖街口
公車站-自強路口
公車站-永康
公車站-埔園里
總價
2,000萬
1,680
萬
建物登記
54.79
坪
格局
6
房
3
廳
3
衛
屋齡
30
年
2
個月
所在樓層
1
~
4
樓/共
4
樓
價格
總價:1,680萬
降價通知我
附近成交行情
貸款試算:
馬上算 >
每坪單價:30.66萬
空間
建物登記:54.79坪
詳細謄本資訊
土地坪數:23.65 坪
主+陽:50.12坪
格局:
6
房
3
廳
3
衛
所在樓層:1~4樓/共4樓
車位描述:無車位
屋況
座向:座東北朝西南
屋齡:
30
年
2
個月
用途:住商用
主要建材:鋼筋混凝土
是否帶租約:否
使用現況:請參閱不動產說明書
環境
地址:臺南市永康區永埔街
學校:
永康國小、永康國中
生活地圖
生活地圖
顯示街景
顯示街景
提醒:本地圖定位為參考 台灣圖霸Map8 定位,請符合 台灣圖霸Map8 地址規範,如有誤差為 台灣圖霸Map8 定位所致
區域開價落點
每坪單價:請洽
06-2030000
鄰近區域銷售中房屋參考資料較少,建議同步參考
成交行情
資料來源:距離本物件800公尺範圍內之中信房屋待售行情資訊。
更多圖片
想了解更多物件資訊嗎? 立刻聯絡
台南永康永大加盟店
06-2030000
鑫笠企業社
區域實價登錄
區域實價登錄
共有{{price_gv.DataSouce.total}}筆物件
成交日期
地址
成交價
單價
類型
屋齡
總坪數
土地坪數
備註
{{fn.RenderDate(item.con_date)}}
{{item.address}}
{{item.total_price}}萬
{{item.unit_price.toFixed(0)}}萬/坪
{{item.htc_name}}
{{item.house_age}}年
{{item.building_area.toFixed(2)}}坪
{{item.land_area.toFixed(2)}}坪
註
{{item.remark}}
{{item.remark}}
X
{{itemPage.txt}}
共有{{community_gv.DataSouce.total}}筆物件
成交日期
地址
成交價
單價
類型
屋齡
總坪數
土地坪數
備註
{{fn.RenderDate(item.con_date)}}
{{item.address}}
{{item.total_price}}萬
{{item.unit_price.toFixed(0)}}萬/坪
{{item.htc_name}}
{{item.house_age}}年
{{item.building_area.toFixed(2)}}坪
{{item.land_area.toFixed(2)}}坪
註
{{item.remark}}
{{item.remark}}
X
{{itemPage.txt}}
看過此物件的人也看了以下物件
{{item.case_name}}
{{item.address}}
{{item.house_area}}坪
{{item.r_type}}
售價
{{item.sell_price}}
萬
看更多
降價通知我
請輸入您的聯絡資訊,我們將派人與您聯繫。
*
當您留下個人資料時,表示你已了解閱讀並同意中信房仲網之
隱私權政策
。
送出
本物件異動價格下降時,將以簡訊通知您。
確定
立即聯繫專人
請輸入您的聯絡資訊,我們將立即為您服務。
*
當您留下個人資料時,表示你已了解閱讀並同意中信房仲網之
隱私權政策
。
送出
我要出價
預約看屋
聯絡電話
分享
降價通知
預約看屋
聯絡電話
分享
預約看屋
聯絡電話
轉寄親友
對方聯絡資訊
*
*
表示必填欄位
※您可轉寄給多位親友,請在不同E-mail間用分號 ; 區隔
信件主旨/分享內容
*
分享推薦-專-近永康國中透天店住(臺南市永康區永埔街)
想分享這個資訊給你
寄件人資訊
*
※當您留下個人資料時,表示你已了解閱讀並同意中信房仲網之
隱私權政策
。
更新驗證碼
{{sendFriendLoading?"資料傳輸中":"送出"}}
{{mailinfo.nick}}
,謝謝您的分享!
也歡迎利用社群功能
分享更多資訊!
確定
我有興趣
您的資料已成功送出,本物件負責加盟店將盡速與您聯繫。
您可能也會喜歡以下物件:
2180萬
永康鹽行店住(租售)
臺南市永康區中正南路
4房2廳3衛
35.57坪
1398萬
永康歐洲世界靜謐挑高車墅
臺南市永康區正強街
4房2廳3衛
63.75坪
1190萬
兵仔市旁需大整修角窗店住
臺南市永康區中華一路
2房1廳1衛
17.02坪
1880萬
永康中華商圈收租10套房(帶租約)
臺南市永康區中華二路
10房10衛
58.73坪
預約看屋
取消
1997485,2063987,2067760,2018356
我有興趣
以下是您追加的預約資訊:
永康鹽行店住(租售)
已處理成功,本物件負責加盟店將盡速與您聯繫。
永康歐洲世界靜謐挑高車墅
已處理成功,本物件負責加盟店將盡速與您聯繫。
兵仔市旁需大整修角窗店住
已處理成功,本物件負責加盟店將盡速與您聯繫。
永康中華商圈收租10套房(帶租約)
已處理成功,本物件負責加盟店將盡速與您聯繫。
確定
謄本資訊
總坪數:
54.79 坪
●主建物小計:46.55 坪
●附屬建物小計:8.24 坪 (含陽台3.57坪,其他4.68坪)
土地坪數:
23.65 坪
謄本資料為米平方為單位,官網顯示為坪,所以計算上會有些微四捨五入的誤差
貸款試算
房屋總價
1,680
萬
貸款金額
{{loan.price_f}}
元
貸款成數
%
貸款年限
年
貸款年利率
%
※ 依個人條件不同,貸款年利率將有所差異。
每月償還本息
{{loan.monthpay}}
元/每月
註解
所謂公設比,是指房屋權狀坪數中,屬於共同使用的空間比例。公設比愈高, 代表公共設施、共同使用的空間愈大,相對實際屬於住戶私有的坪數愈小。公 設比計算方式說明:公設比=共用部分面積/權狀總面積(主建物+附屬建物+共 用部分面積)。如遇梯間拼入主建物面積登記,或有其他約定專用或約定共用之 特殊情形者,仍依上開方式計算,並依地政機關登記簿謄本為準。
預約看屋
姓名
手機號碼
可聯絡時間
皆可
上午
中午
下午
晚上
預約看屋
我要出價
姓名
手機號碼
出價金額
萬
可聯絡時間
皆可
上午
中午
下午
晚上
送出
目前尚無收藏物件
確定
192.168.1.43